Fieldfare Road, Hinckley, LE10 £350,000

NEW

4 bedroom house for sale

Bedroom icon 4
Reception room icon 2
Bathroom icon 2
Kitchen from a house in Stoke Golding

About Fieldfare Road, Hinckley, LE10

Welcome to this exquisite 4-bedroom detached house nestled in a sought-after neighbourhood, offering a spacious modern sanctuary for you and your loved ones. As you step inside, a sense of warmth envelops you, inviting you to explore each corner of this meticulously designed home. The ground floor boasts a convenient downstairs toilet and a practical utility room, adding to the ease of every-day living. Ascend the stairs to discover four well-proportioned bedrooms, each a tranquil haven for rest and relaxation. The master bedroom whispers promises of comfort and serenity as you envision unwinding after a long day in your private retreat.

Venture outside to embrace the allure of the good-sized rear garden, a verdant oasis where memories are waiting to be made. Picture summer gatherings and laughter filling the air as you sip your morning coffee on the patio, soaking in the peaceful surroundings. A tarmac driveway provides off-road parking, ensuring convenience for you and your guests. The drive leading to the detached garage offers ample storage space for your prized possessions, while the open over door, power, and lighten roof storage space enhance the functionality of this outdoor haven. Double glaze doors to the side beckon you to explore further, promising an extension of the indoor comforts into the embrace of nature.

Overflowing with charm and possibilities, this property is more than just a house – it's a place where dreams take root and memories blossom. We eagerly anticipate the opportunity to guide you through this enchanting property and witness you envisioning the life you could build within its walls. Welcome home to a space where every corner whispers tales of comfort and joy, waiting for you to make it your own.
EPC Rating Grade B
Council Tax Band D
Tenure Freehold
 

Property Information

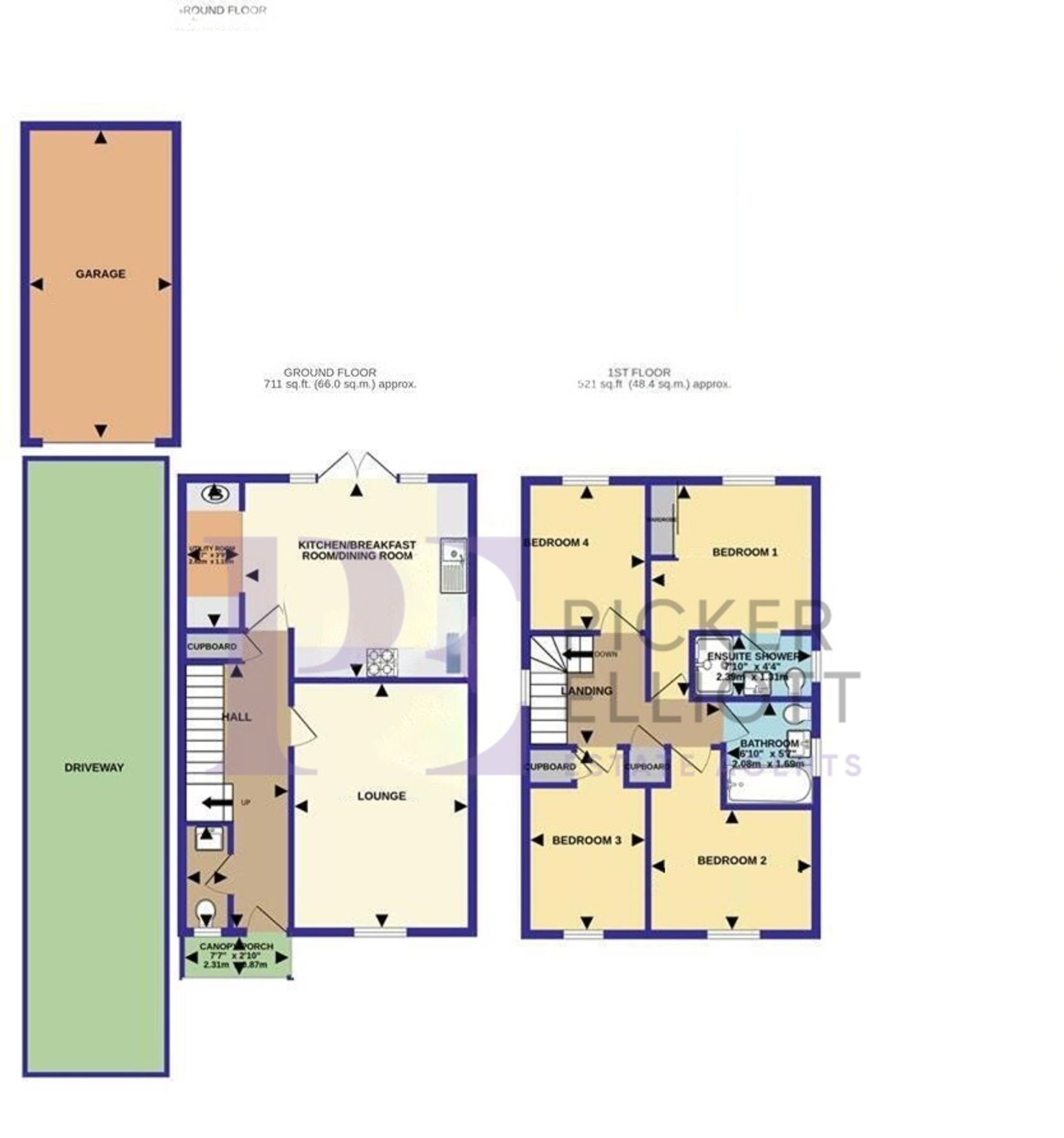
Reception hall

Opaque double glazed composite door radiator, stairs to first floor landing, useful under stairs storage cupboard

WC

Low level flush toilet, wall mounted wash basin with tiled splashback, radiator, opaque double glazed window, extractor fan

Spacious lounge

Double glazed window to front, radiator,

Kitchen dining room

Excellent range of contemporary basin and wall units, roll edge work surfaces over matching up stands to splash back, inset AEG gas hob with extracted over, separate built-in double oven, dishwasher, integrated fridge freezer, inset one and a half drainer sink with mixer tap, bi-folding doors to rear garden, radiator, inset spotlights, opening through to utility area

Utility area

A roll edge work surfaces with space for washing machine, space for tumble dryer, wall mounted cambi boiler and radiator

First floor landing

With spindled oak handrail, double glazed window, useful storage cupboard, loft access with drop-down hatch

Bedroom one

Built in double wardrobe, sliding mirror doors, radiator, double glazed window

En suite

Low level flush WC, wall mounted wash base and tiled splashback, walk in shower cubicle fully tiled, inset spotlights, extract fan, radiator, opaque double glazed window

Bedroom two

Double glazed window, radiator

Bedroom three

Double glazed window, radiator, door to useful storage cupboard

Bedroom four

Double glazed window, radiator

Bathroom

Panelled bath with glass shower screen and shower attachment over, wall mounted wash basin, low level flush WC, opaque double glazed window, inset spotlights, extractor fan, electric shaver point, wall mounted towel radiator

Front Garden

Decorative borders

Rear Garden

Laid to lawn with large slabbed patio

Driveway

Tarmac driveway provide off-road parking

Garage

Up and over door, power and lighting roof storage space and glaze double doors to side